logo

Reference

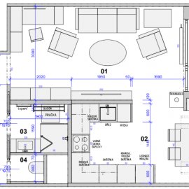
Praha 9 - dispoziční návrh bytu

21.01.2021
16 000 Kč
(5 / 5)

Dispoziční návrh panelákového bytu 4+1 v Praze 9, v ulici Cíglerova. Návrh byl vytvořen pro rekonstrukci bytu firmou Mondat s.r.o.

Provedené práce: architektonické práce
Zhotovitel
Pavel S.

Fotogalerie projektu

Elektroinstalace
Elektroinstalace
Detail kuchyňské linky
Detail kuchyňské linky
Původní stav
Původní stav
Půdorys bytu
Půdorys bytu