logo

Reference

Praha 5 - dispoziční návrh bytu

28.04.2019
18 500 Kč
(5 / 5)

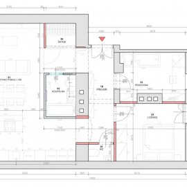
Dispoziční návrh činžovního bytu 3+kk v Praze 5 na Andělu v ulici Holečkova. Návrh byl vytvořen pro rekonstrukci bytu firmou Mondat s.r.o.

Provedené práce: architektonické práce
Zhotovitel
Pavel S.

Fotogalerie projektu

Holečkova - architektonické práce - elektroinstalace
Holečkova - architektonické práce - elektroinstalace
Holečkova - architektonické práce - stavební výkres
Holečkova - architektonické práce - stavební výkres
Holečkova - architektonické práce - stávající stav
Holečkova - architektonické práce - stávající stav
Holečkova - architektonické práce - dispoziční řešení
Holečkova - architektonické práce - dispoziční řešení