logo

Reference

Praha 15 - dispoziční řešení bytu

25.11.2020
18 000 Kč
(5 / 5)

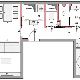
Dispoziční návrh panelákového bytu 3+kk v Praze 15 - v ulici Livornská. Návrh byl vytvořen pro rekonstrukci bytu firmou Mondat s.r.o.

Provedené práce: architektonické práce
Zhotovitel
Pavel S.

Fotogalerie projektu

Praha 15 - půdorys
Praha 15 - půdorys
Praha 15 - půdorys s kótami
Praha 15 - půdorys s kótami
Praha 15 - elektro
Praha 15 - elektro
Praha 15 - 3D pohled
Praha 15 - 3D pohled
Praha 15 - 3D pohled
Praha 15 - 3D pohled
Praha 15 - 3D pohled
Praha 15 - 3D pohled