logo

Reference

Praha 14 - dispoziční řešení bytu 3+kk

23.05.2019
18 000 Kč
(5 / 5)

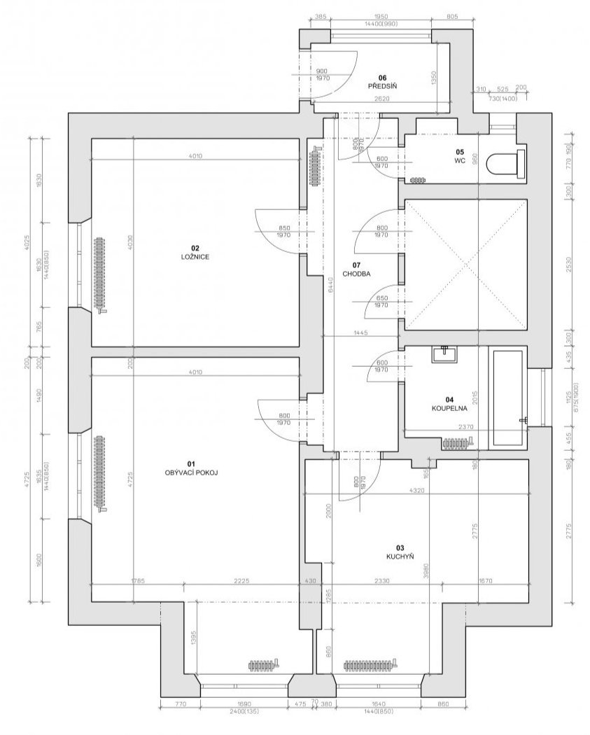
Dispoziční návrh činžovního bytu 3+kk v Praze 14 - kyjích v ulici Horusická. Návrh byl vytvořen pro rekonstrukci bytu firmou Mondat s.r.o.

Provedené práce: architektonické práce
Zhotovitel
Pavel S.

Fotogalerie projektu

Horusická architektonický návrh - stávající stav
Horusická architektonický návrh - stávající stav
Horusická architektonický návrh - elektroinstalace
Horusická architektonický návrh - elektroinstalace
Horusická architektonický návrh - stavební výkres
Horusická architektonický návrh - stavební výkres
Horusická architektonický návrh - dispoziční řešení
Horusická architektonický návrh - dispoziční řešení