logo

Reference

Praha 10 - dispoziční návrh bytu

02.09.2019
21 000 Kč
(5 / 5)

Dispoziční návrh činžovního bytu 5+kk v Praze 10 - Vršovicích v ulici Rybálkova. Návrh byl vytvořen pro firmu Mondat s.r.o., která tento byt následně rekonstruovala.

Provedené práce: architektonické práce
Zhotovitel
Pavel S.

Fotogalerie projektu

Architektonické práce Rybálkova - stávající stav
Architektonické práce Rybálkova - stávající stav
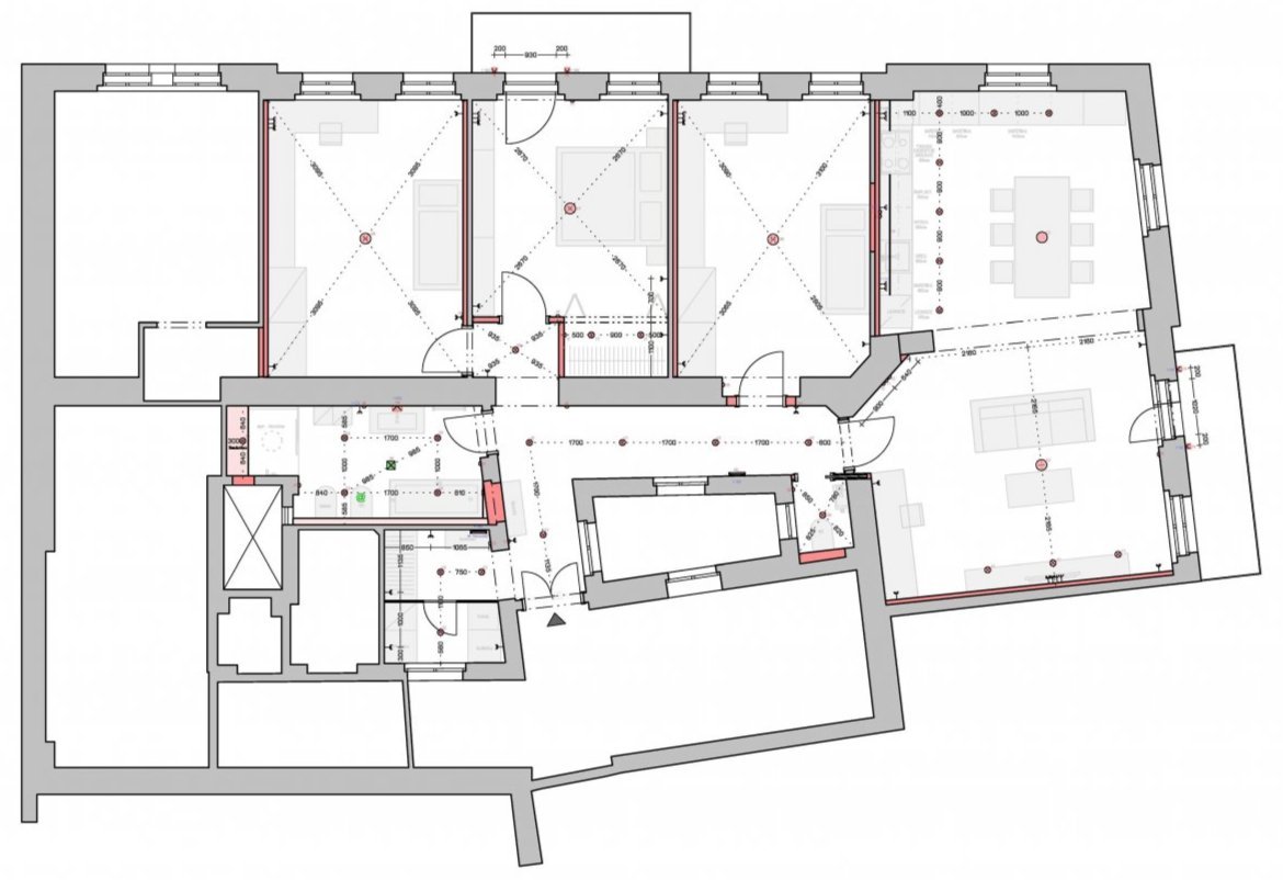
Architektonické práce Rybálkova - elektro
Architektonické práce Rybálkova - elektro
Architektonické práce Rybálkova - stavební výkres
Architektonické práce Rybálkova - stavební výkres
Architektonické práce Rybálkova - návrh dispozice
Architektonické práce Rybálkova - návrh dispozice
Architektonické práce Rybálkova - TZB
Architektonické práce Rybálkova - TZB
Architektonické práce Rybálkova - 3D
Architektonické práce Rybálkova - 3D
Architektonické práce Rybálkova - 3D
Architektonické práce Rybálkova - 3D
Architektonické práce Rybálkova - 3D
Architektonické práce Rybálkova - 3D
Architektonické práce Rybálkova - 3D
Architektonické práce Rybálkova - 3D
Architektonické práce Rybálkova - 3D
Architektonické práce Rybálkova - 3D
Architektonické práce Rybálkova - 3D
Architektonické práce Rybálkova - 3D