logo

Reference

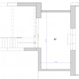
Kolín - dispoziční návrh bytu 3+kk

06.05.2021
21 000 Kč
(5 / 5)

Dispoziční návrh mezonetového bytu 3+kk v Kolíně, v ulici Zámecká. Návrh byl vytvořen pro rekonstrukci bytu firmou Mondat s.r.o.

Provedené práce: architektonické práce
Zhotovitel
Pavel S.

Fotogalerie projektu

Elektroinstalace
Elektroinstalace
Elektroinstalace - mezonet
Elektroinstalace - mezonet
Půdorys bytu
Půdorys bytu
Původní stav - celý byt
Původní stav - celý byt
Původní stav - mezonet
Původní stav - mezonet
Původní stav - 3D
Původní stav - 3D
Původní stav - 3D - mezonet
Původní stav - 3D - mezonet