logo

Reference

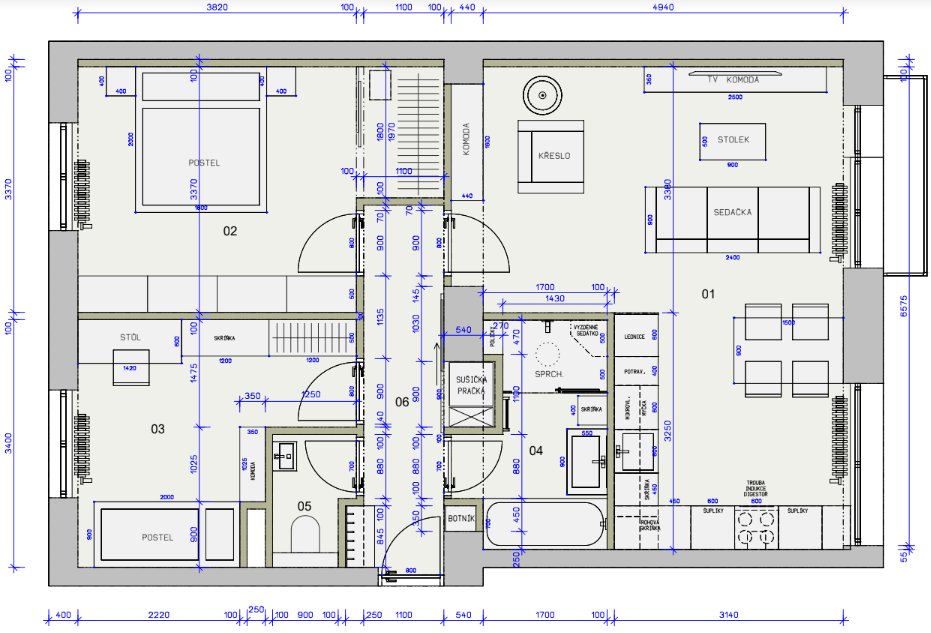
Praha 3 - Architektonický návrh

20.01.2022
23 000 Kč
(5 / 5)

Dispoziční návrh panelákového bytu 3+kk v Praze 3, v ulici Pod Lipami. Návrh byl vytvořen pro rekonstrukci bytu firmou Mondat s.r.o.

Provedené práce: architektonické práce
Zhotovitel
Pavel S.

Fotogalerie projektu